Котеджне містечко квадробудинків розташоване між Бояркою та Білогородкою пропонує на продаж!
Здача ПЕРШОЇ черги третій квартал 2025 р.
Ціна 40 000$
Здача ДРУГОЇ ЧЕРГИ Осінь 2025 р.
Ціна 35 000$
При 100% оплаті -10% знижки!
Благодійний фонд МІЛА Олексія Юренка
ПРИ 100% ОПЛАТІ додатково надає ЗНИЖКУ від -10% до 30% для:
– військових;
– переселенців з тимчасово окупованої території;
– багатодітних сімей.
МОЖЛИВЕ БЕЗВІДСОТКОВЕ РОЗТЕРМІНУВАННЯ НА 6 МІСЯЦІВ ПРИ 50% ВНЕСКУ!
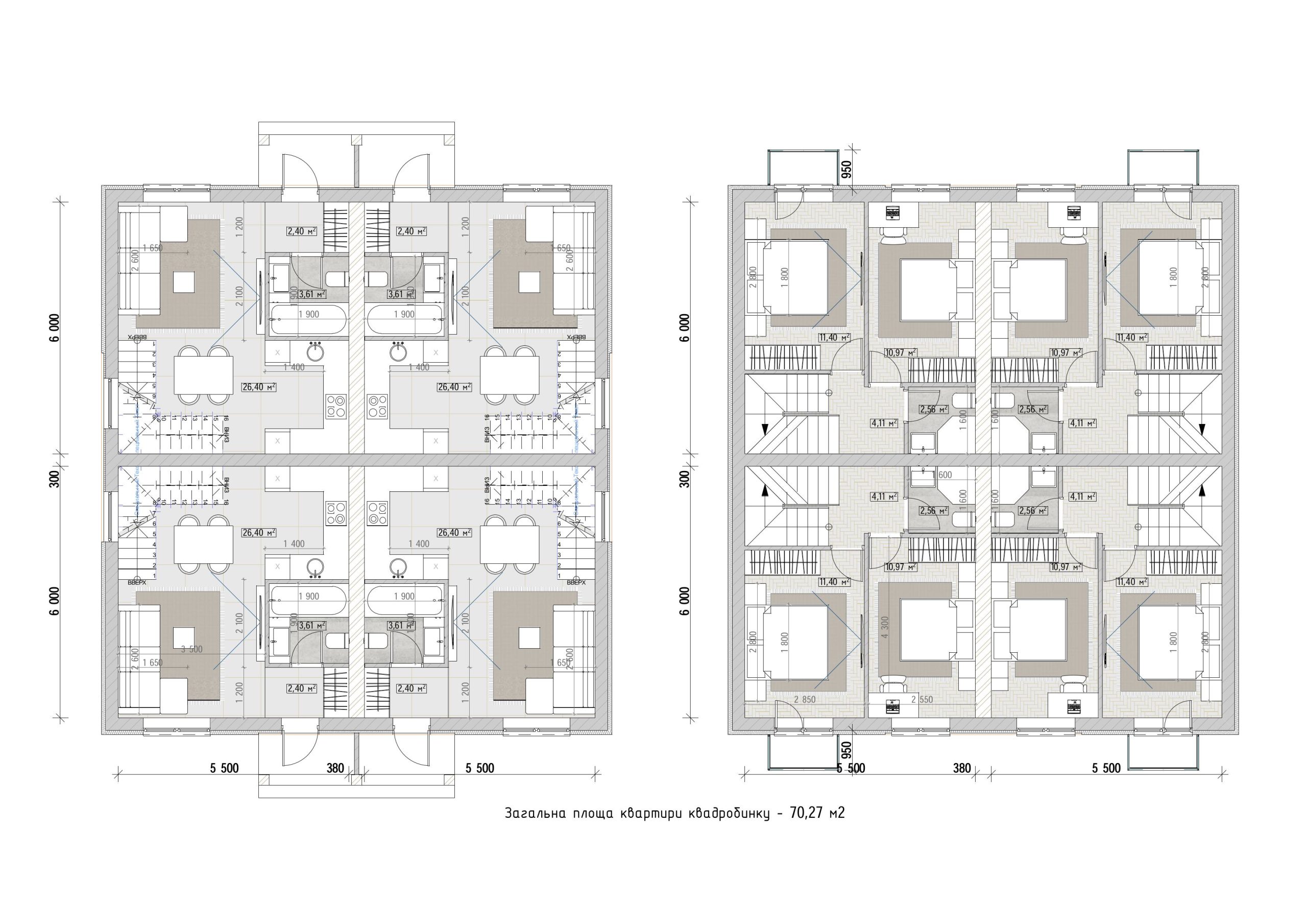
Квадробудинок (будинок поділений на 4 частини, у кожного свій двір, заїзд для авто).
2 поверхи, 70м², + мансарда 20.28 м2 (можливо зробити додаткову кіинату), 1,33 сотки ділянки.
Свій септик, свердловина.
Є МОЖЛИВІСТЬ ОБ’ЄДНАННЯ ЧАСТИН – ТИМ САМИМ ЗБІЛЬШИТИ МЕТРАЖ ЖИЛОЇ ПЛОЩІ!
Зручне розташування в передмісті Києва. Поруч інфраструктура Боярки та Білогородки, Неподалік Епіцентр та супермаркет Сільпо. Зупинка громадського транспорту біля комплексу.
Характеристики: стрічковий фундамент, несучі стіни з газоблока 300мм, залізобетонні плити перекриття. Утеплення пінопласт ПСБ-С-35 – 100мм. Декоративна штукатурка, високоякісне фарбування. Панорамне скління двокамерними склопакетами.
Покрівля металочерепиця.
Можливий кредит на 5 та 10 років з можливістю дострокового погашення та “кредитних канікул” !
Можливі варіанти продажу:
– за готівку;
– безготівковий;
– за криптовалюту;
– обмін на нерухомість, авто, тощо;
– бартер на будівельні матеріали.
За більш детальною інформацією – телефонуйте!
