ВЕЛИКОДНІ ЗНИЖКИ -20%!
Loading map...
 Home    Квадродім 33 м2, 1,33 соток, h=4.2м

Квадродім 33 м2, 1,33 соток, h=4.2м

Ukraine
$28,000
Квадробудинок
  • 779
  • 0

Description

Продаж ОСТАННІХ ДВОХ квадробудинків!
Можна об’єднати!

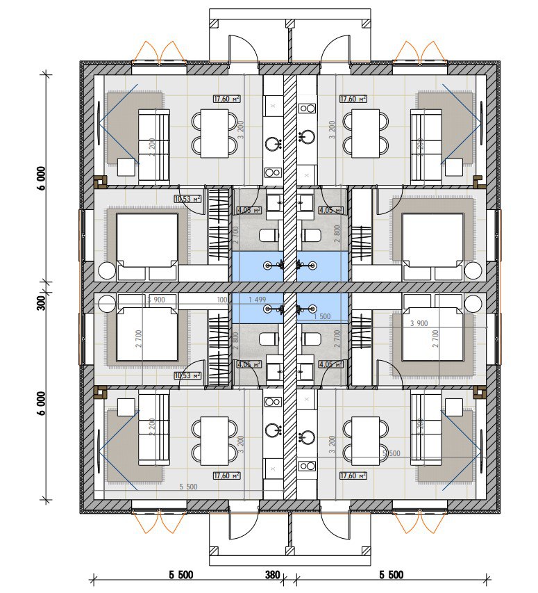
Одноповерхові квадробудинки — квартири площею 33 м² з відкритим простором та висотою стелі до 4,2 м. Завдяки цьому є можливість облаштувати додатковий житловий рівень зі спальнею на верхньому ярусі. До кожного об’єкта додається земельна ділянка площею 1,5 сотки.

Котеджне містечко [посилання приховано]. Park надає вибір між ОДНО- та ДВОПОВЕРХОВИМИ квадробудинками (кожен будинок поділений на чотири частини із власним двором та паркувальним місцем). У домівках облаштовано автономні комунікації: септик, свердловина.

Можливі варіанти оплати:
– безвідсоткова розстрочка на 6 місяців при внесенні 50% від вартості;
– індивідуальні умови довгострокової розстрочки.

Характеристики житла:
– фундамент стрічковий;
– несучі стіни із газоблока товщиною 300 мм;
– утеплення пінопластом ПСБ-С-35 (100 мм);
– декоративна штукатурка, високоякісне фарбування;
– панорамні вікна з двокамерними склопакетами;
– покрівля виконана з металочерепиці.

При 100% оплаті діє знижка 10%

Зручне розташування в передмісті Києва, між Бояркою та Білогородкою. Неподалік комплексу знаходяться зупинка громадського транспорту, будівельний гіпермаркет Епіцентр та супермаркет Сільпо.

За детальною інформацією телефонуйте прямо зараз!

Amenities

No amenities.

Additional Information

No additional information.

Similar Properties

No similar properties found.